Real estate
Novostavby řadového domu 5+kk - Rudolfov
Krátká
Nabízíme k pronájmu novostavbu rodinného řadového domu o dispozici
5kk, a celkové výměře užitné plochy 139 m2, s předzahradou 59 m2, a
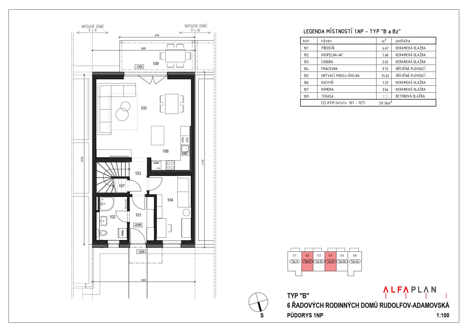
zahradou za domem o výměře 108 m2. Přízemí se skládá z předsíně,
koupelny s WC a sprchovým koutem, chodby, pracovny, obývacího pokoje
s jídelnou a kuchyňským koutem a komory (celková plocha přízemí je
59 m2).
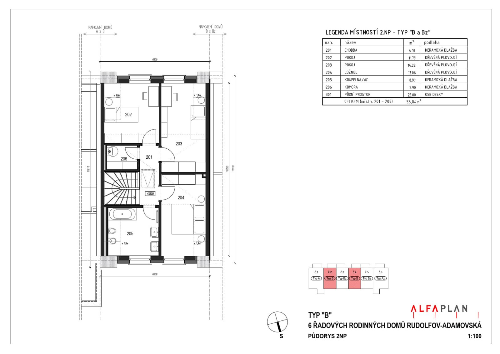
V 1. patře najdete chodbu , 3 ložnice, koupelnu s vanou a WC, a komoru
(celková plocha patra je 55 m2).
Rodinný dům je najímán bez vybavení, pouze s kuchyňskou linkou včetně
spotřebičů.
Prohlídky od 15.3.2026
Nájemné 29.000 Kč/měsíc
záloha na vodu – 1000 Kč/měsíc
plyn + elektřina – přepis na nájemce, předpoklad celkových nákladů na
provoz je 4500/měsíc
Jistota – 2 měsíční nájmy
Rezervace a provize RK – jeden měsíční nájem + DPH
Krátká
Hledej podobné nemovitosti
It will start your career with us
Lorem ipsum dolor sit amet, consectetur adipisicing elit, sed do eiusmod tempor incididunt ut labore et dolore magna aliqua.
Voluptatem sequi nesciunt. Neque porro quisquam est, qui dolorem ipsum quia dolor sit amet, consectetur, adipisci velit, sed quia non numquam eius modi tempora incidunt ut labore et dolore magnam aliquam quaerat voluptatem.























