Real estate
3+kk v novém bytovém projektu Stromovka
Na Zlaté stoce
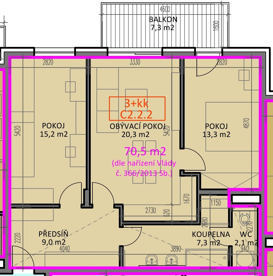
Nabízíme k pronájmu krásný, světlý a zařízený byt 3+kk
o výměře 70,5 m2 v projektu Byty Stromovka v Českých Budějovicích na
2 podlaží s výtahem. Byt se skládá z prostorné vstupní haly, odkud se
vchází do samostatné ložnice, kuchyně s obývákem a dalšího pokoje. Ze
vstupní haly se vstupuje rovněž do koupelny (vana). Byt má příjemnou
terasu o výměře 7,3 m2 s výhledem na ozeleněný prostor a rovněž velmi
prostorný, zděný sklep o výměře 4,1 m2. Byty v blízkosti
volnočasového parku Stromovka jsou velmi žádané pro svou blízkost do
centra města Českých Budějovic, dostupnost veškeré občanské vybavenosti
a zároveň možnost sportovního vyžití. MHD se nachází přímo před
domem. K nastěhování od 1.6.2026, prohlídky po dohodě od 1.5.2026.
Nájemné: 19.000 Kč/měsíc
Zálohy na energie: 6000 Kč/měsíc
Jistota 1 měsíční nájem
Odměna RK: jeden měsíční nájem + DPH
Na Zlaté stoce
Hledej podobné nemovitosti
It will start your career with us
Lorem ipsum dolor sit amet, consectetur adipisicing elit, sed do eiusmod tempor incididunt ut labore et dolore magna aliqua.
Voluptatem sequi nesciunt. Neque porro quisquam est, qui dolorem ipsum quia dolor sit amet, consectetur, adipisci velit, sed quia non numquam eius modi tempora incidunt ut labore et dolore magnam aliquam quaerat voluptatem.

















